Ë_256
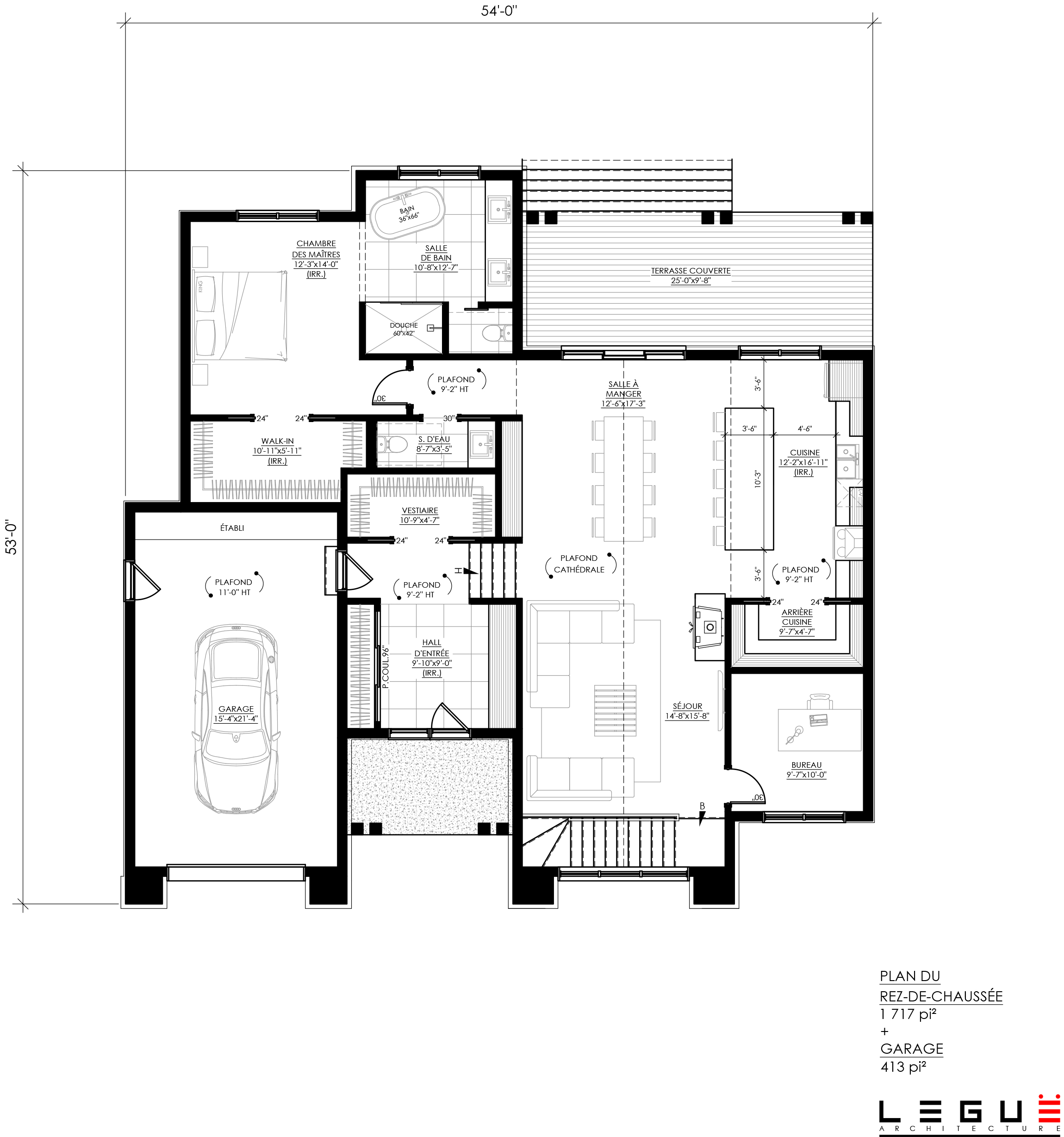
Le plan Ë_256 est un plan de chalet contemporain au Québec conçu avec un plafond cathédrale et une grande aire de vie lumineuse, inspiré du principe architectural de compression et révélation.
Ce bungalow moderne propose une suite des maîtres au rez-de-chaussée, un bureau polyvalent et un sous-sol aménageable avec chambres supplémentaires et salle familiale, idéal comme résidence principale ou chalet familial en nature.
Alliant architecture distinctive, matériaux chaleureux et conception adaptée au climat québécois, le Ë_256 offre confort, fonctionnalité et style intemporel pour une construction neuve au Québec.
- Superficie
- 1740 pi2
- Chambre
- 2 2 possible au sous-sol
- Garage
- Oui
- Salle de bains
- 1.5 et +
- Étages
- 1
- Coût de const.
- 422 000 $ à 622 000 $
Comment sont estimés les coûts de construction?
Il y a toujours deux prix d’indiqués pour chacun de nos plans. Le premier montant représente un coût en autoconstruction et le second un coût clef en main. Ils sont évalués au pied carré selon une moyenne de coût de construction au Québec. Ces coûts sont approximatifs et calculés avec des matériaux de qualité standard. Ils varieront selon le type de finition que vous choisirez, les particularités de votre terrain, le coût des matériaux de votre région, etc..
Bien entendu, ceux-ci n’incluent pas les coûts d’achat de votre terrain et terrassement puisque nous n’avons aucun contrôle sur ses prix. Le coût en autoconstruction prévoit que les propriétaires gèrent eux-mêmes leur chantier et feront les travaux eux-mêmes. Alors que le coût clef en main prévoit qu’un entrepreneur général s’occupera de la construction de A à Z.
Finition intérieure prévue : Céramique aux endroits indiqués sur les plans. Bois franc au rez-de-chaussée et étage. Cabinets (cuisine et salle de bains) en mélamine. Escalier du rez-de-chaussée en bois franc et sous-sol en planches de particules de bois. Électricité, plomberie et ventilation par pièce. Les coûts ne prévoient pas la finition du sous-sol (lorsqu’il y en a un), mais prévoient tout de même son isolation et la finition de gypse au pourtour des murs extérieurs.
Finition extérieure prévue : Les finitions représentés sur les 3D ont été considérés dans les estimés. Les matériaux extérieurs couramment utilisés pour nos plans sont la maçonnerie, le déclin et l’acrylique. Fenêtres en PVC. Toiture en bardeaux d’asphalte lorsque la pente le permet, sinon en membrane d’étanchéité autocollante pour les pentes faibles. Fondation de béton coulé.
Pour un estimé précis qui tiendra compte de vos choix de finition, de la période de construction de votre projet, des matériaux locaux ainsi que des prix des sous-traitants de votre région, il faudra soumettre vos plans LEGUË architecture à un ou plusieurs entrepreneurs et discuter des finitions souhaitées. Il s’agit du processus normal et de la première étape dans votre projet de construction.



























