Ë_258A
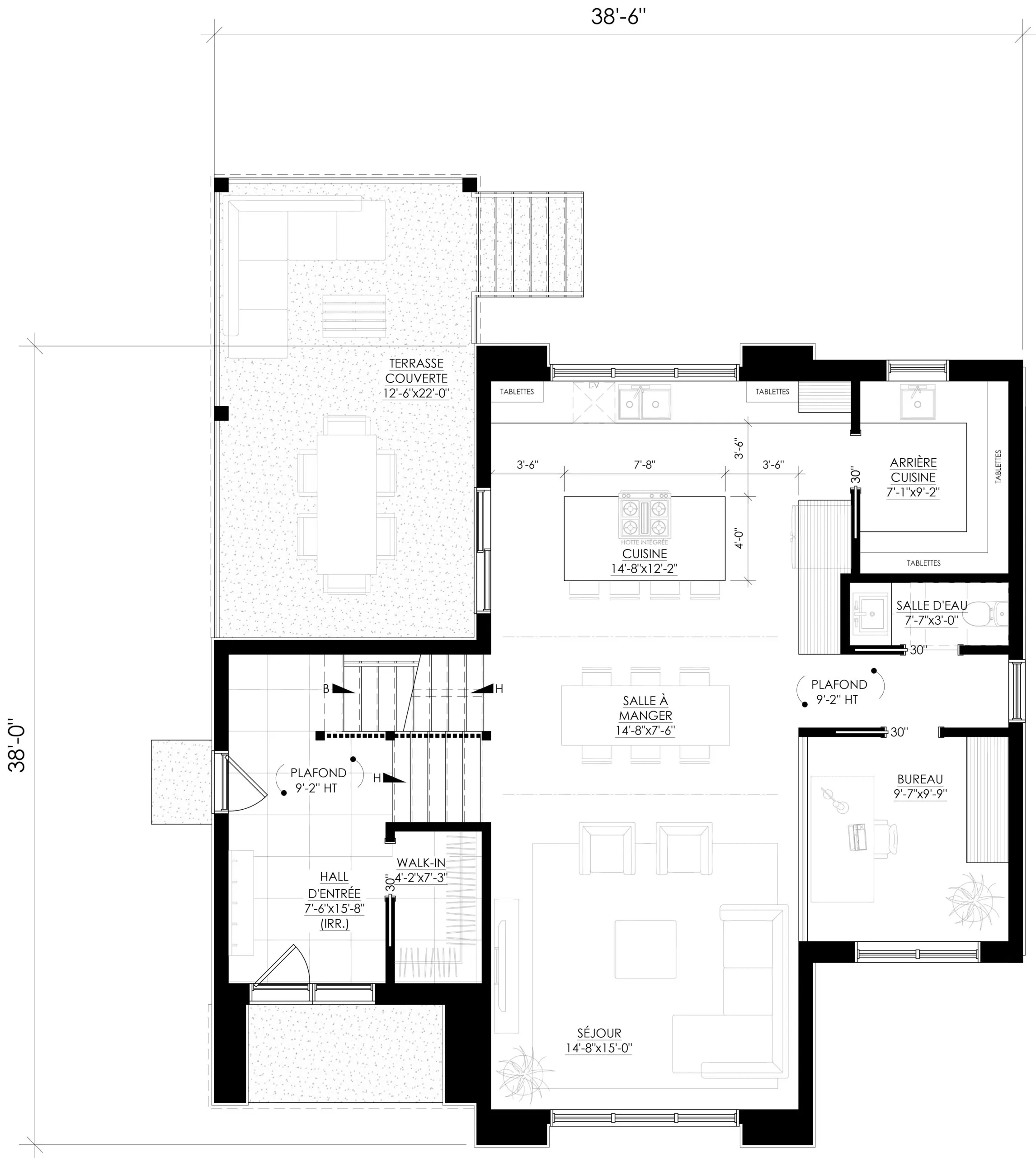
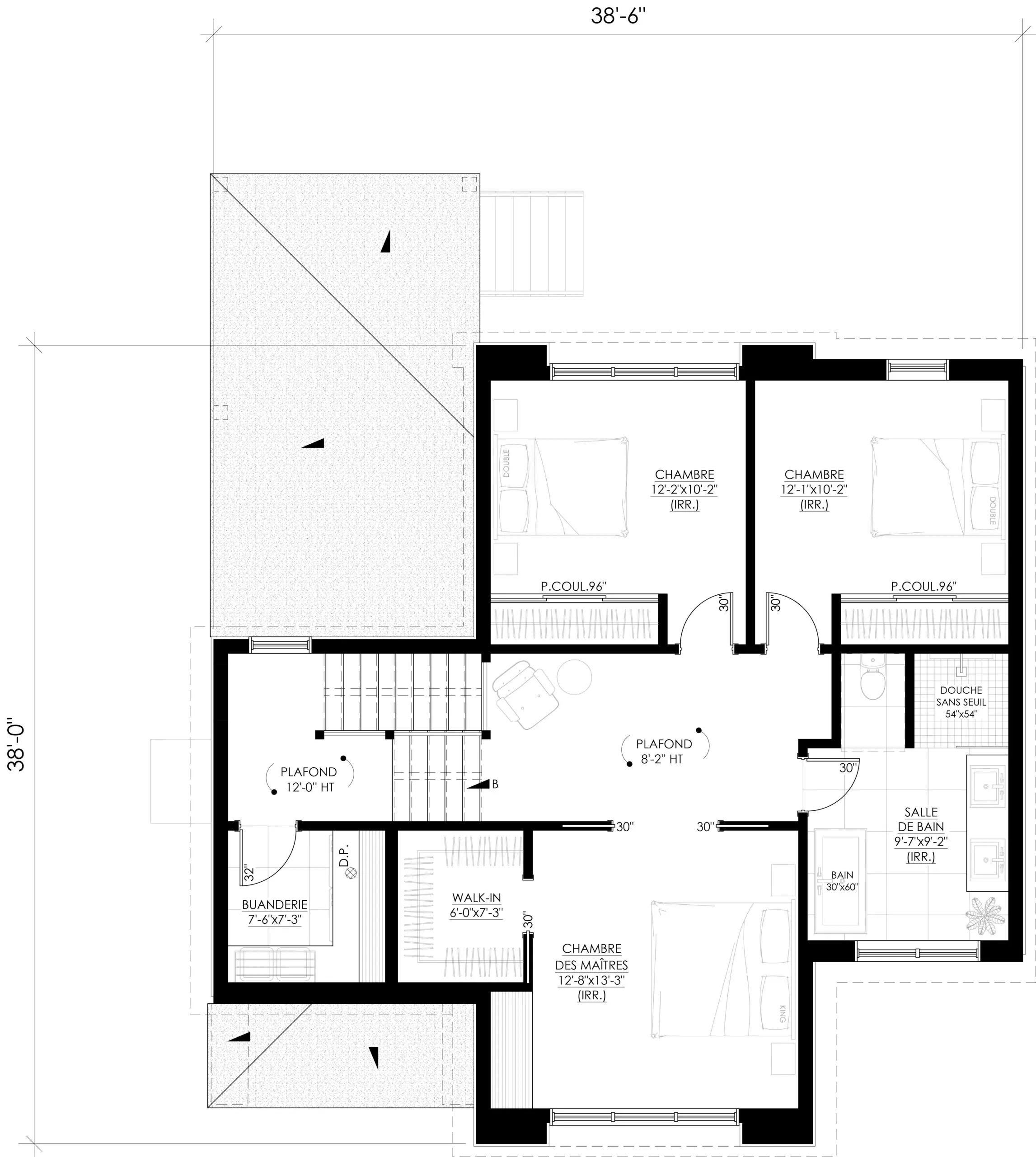
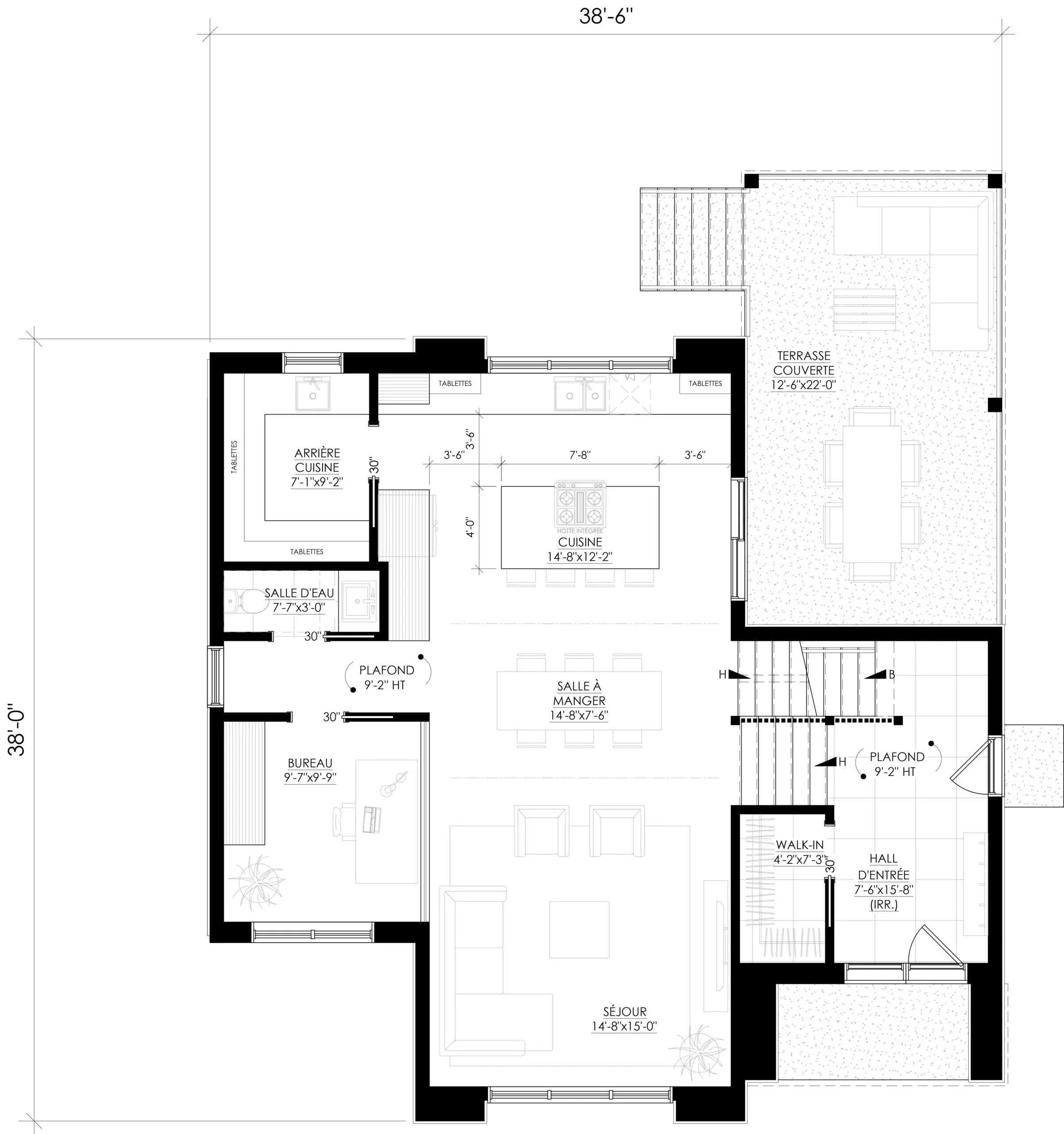
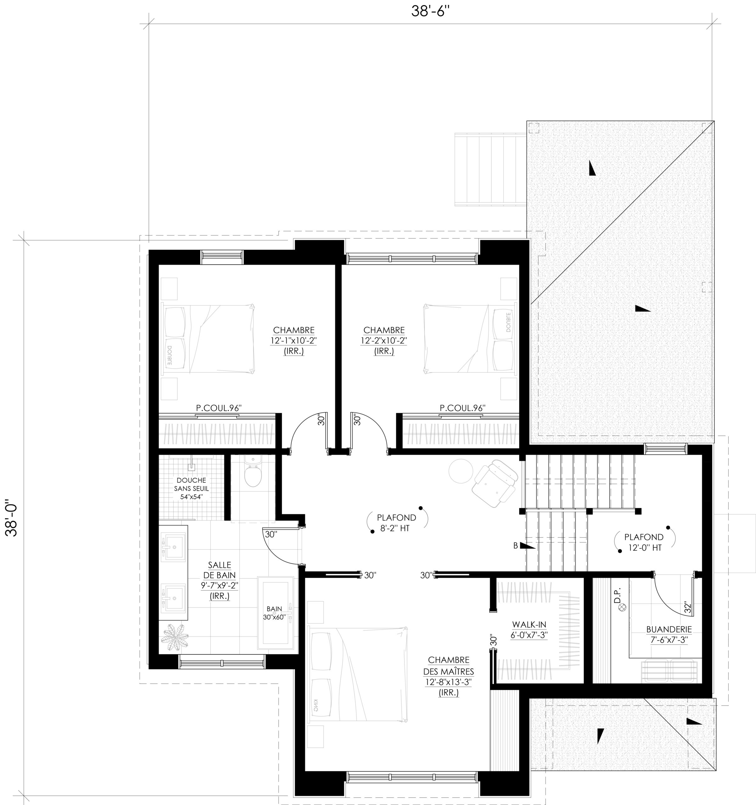
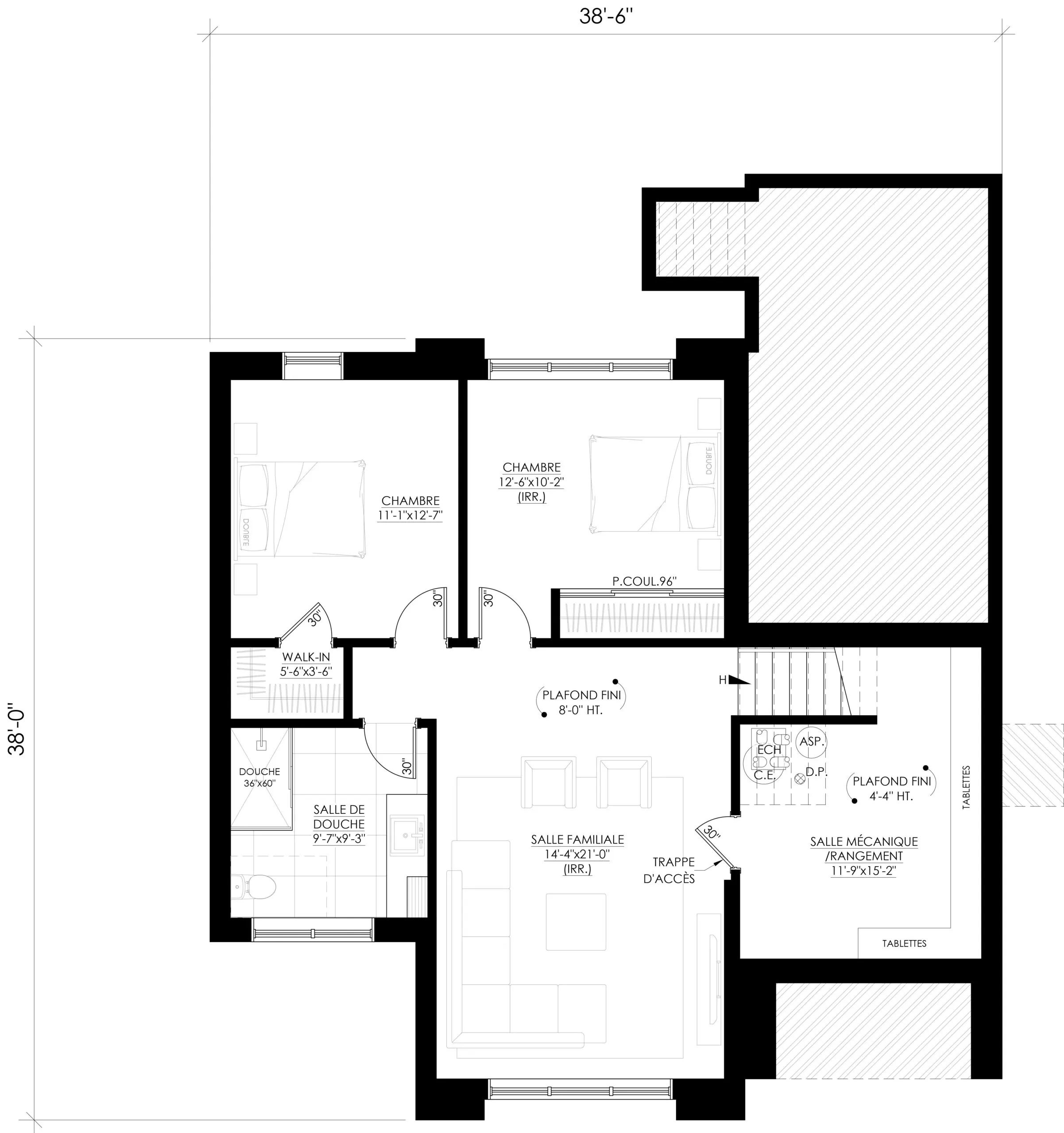
Le plan évolutif Ë_258 représente une avancée majeure dans la conception résidentielle au Québec en proposant une maison capable de s’adapter aux besoins des familles au fil du temps. Pensé dès le départ comme un concept flexible et durable, le Ë_258 offre une configuration initiale parfaitement fonctionnelle avec de grandes aires de vie lumineuses, une cuisine complète avec arrière-cuisine, un bureau bien situé au rez-de-chaussée ainsi que trois chambres regroupées à l’étage. Cette base solide répond aux exigences actuelles de la plupart des ménages tout en offrant un confort remarquable.
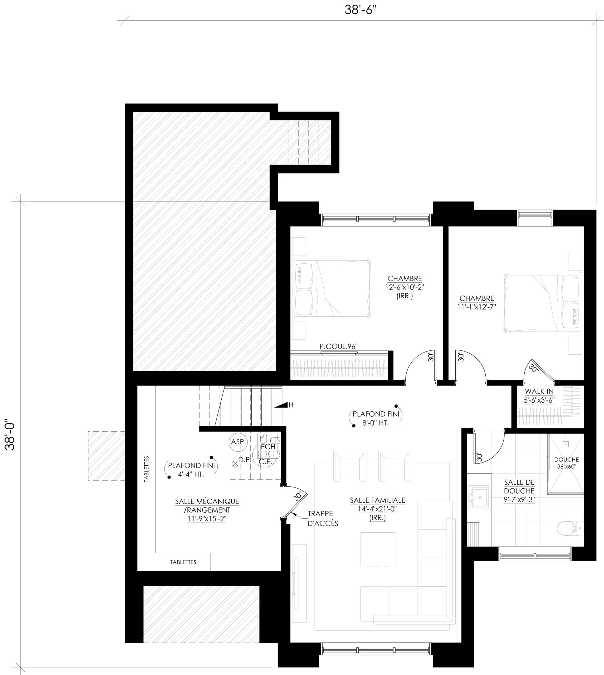
L’innovation du plan Ë_258 réside dans sa capacité à évoluer sans nécessiter la reconstruction d’une nouvelle maison. Lorsque la famille grandit ou que le budget le permet, un agrandissement peut être réalisé de façon harmonieuse grâce à une planification architecturale prévue dès l’origine. L’espace est ainsi conçu pour accueillir un garage attenant et une suite des maîtres spacieuse et entièrement indépendante, permettant de transformer l’étage existant en zone réservée aux enfants.
Le concept pousse plus loin la notion d’adaptabilité en prévoyant également l’intégration possible d’un espace autonome destiné à un logement bigénération, à des chambres supplémentaires, à un atelier ou à un bureau distinct. Tous les accès, la circulation et les volumes ont été réfléchis pour intégrer cette transformation de manière naturelle, sans rupture esthétique ni fonctionnelle.
En offrant une structure évolutive et modulable, le plan Ë_258 permet aux propriétaires de faire grandir leur maison en même temps que leur projet de vie, sans compromis sur le design, la qualité ou l’harmonie architecturale. C’est une approche durable, intelligente et parfaitement adaptée aux réalités contemporaines, où l’on peut faire évoluer sa maison… sans nécessairement en changer.
- Superficie
- 2 158 pi2
- Chambre
- 4 + 2 possible au sous-sol
- Garage
- Non
- Salle de bains
- 1.5 et +
- Étages
- 2
- Coût de const.
- 589 000 $ à 755 000 $
Comment sont estimés les coûts de construction?
Il y a toujours deux prix d’indiqués pour chacun de nos plans. Le premier montant représente un coût en autoconstruction et le second un coût clef en main. Ils sont évalués au pied carré selon une moyenne de coût de construction au Québec. Ces coûts sont approximatifs et calculés avec des matériaux de qualité standard. Ils varieront selon le type de finition que vous choisirez, les particularités de votre terrain, le coût des matériaux de votre région, etc..
Bien entendu, ceux-ci n’incluent pas les coûts d’achat de votre terrain et terrassement puisque nous n’avons aucun contrôle sur ses prix. Le coût en autoconstruction prévoit que les propriétaires gèrent eux-mêmes leur chantier et feront les travaux eux-mêmes. Alors que le coût clef en main prévoit qu’un entrepreneur général s’occupera de la construction de A à Z.
Finition intérieure prévue : Céramique aux endroits indiqués sur les plans. Bois franc au rez-de-chaussée et étage. Cabinets (cuisine et salle de bains) en mélamine. Escalier du rez-de-chaussée en bois franc et sous-sol en planches de particules de bois. Électricité, plomberie et ventilation par pièce. Les coûts ne prévoient pas la finition du sous-sol (lorsqu’il y en a un), mais prévoient tout de même son isolation et la finition de gypse au pourtour des murs extérieurs.
Finition extérieure prévue : Les finitions représentés sur les 3D ont été considérés dans les estimés. Les matériaux extérieurs couramment utilisés pour nos plans sont la maçonnerie, le déclin et l’acrylique. Fenêtres en PVC. Toiture en bardeaux d’asphalte lorsque la pente le permet, sinon en membrane d’étanchéité autocollante pour les pentes faibles. Fondation de béton coulé.
Pour un estimé précis qui tiendra compte de vos choix de finition, de la période de construction de votre projet, des matériaux locaux ainsi que des prix des sous-traitants de votre région, il faudra soumettre vos plans LEGUË architecture à un ou plusieurs entrepreneurs et discuter des finitions souhaitées. Il s’agit du processus normal et de la première étape dans votre projet de construction.





























