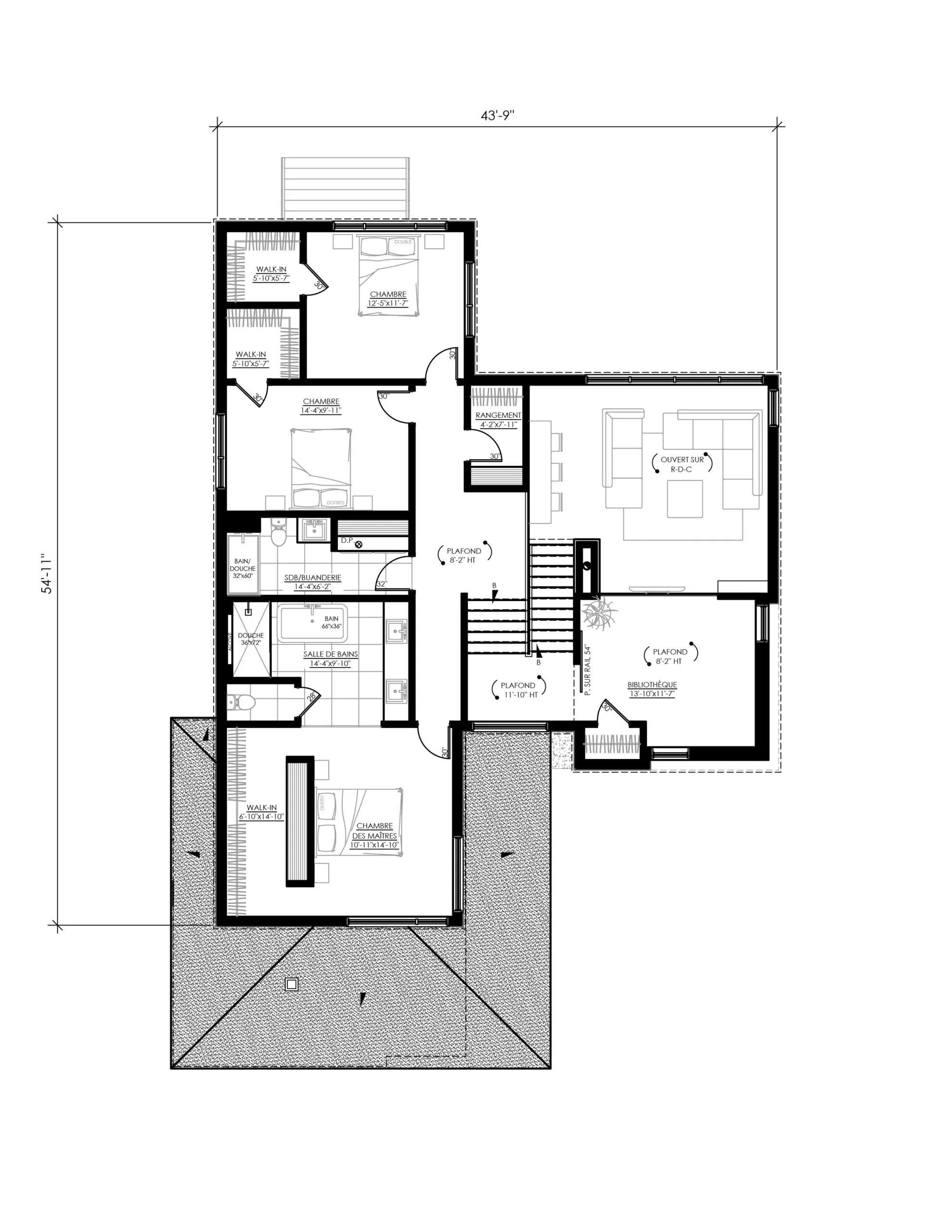
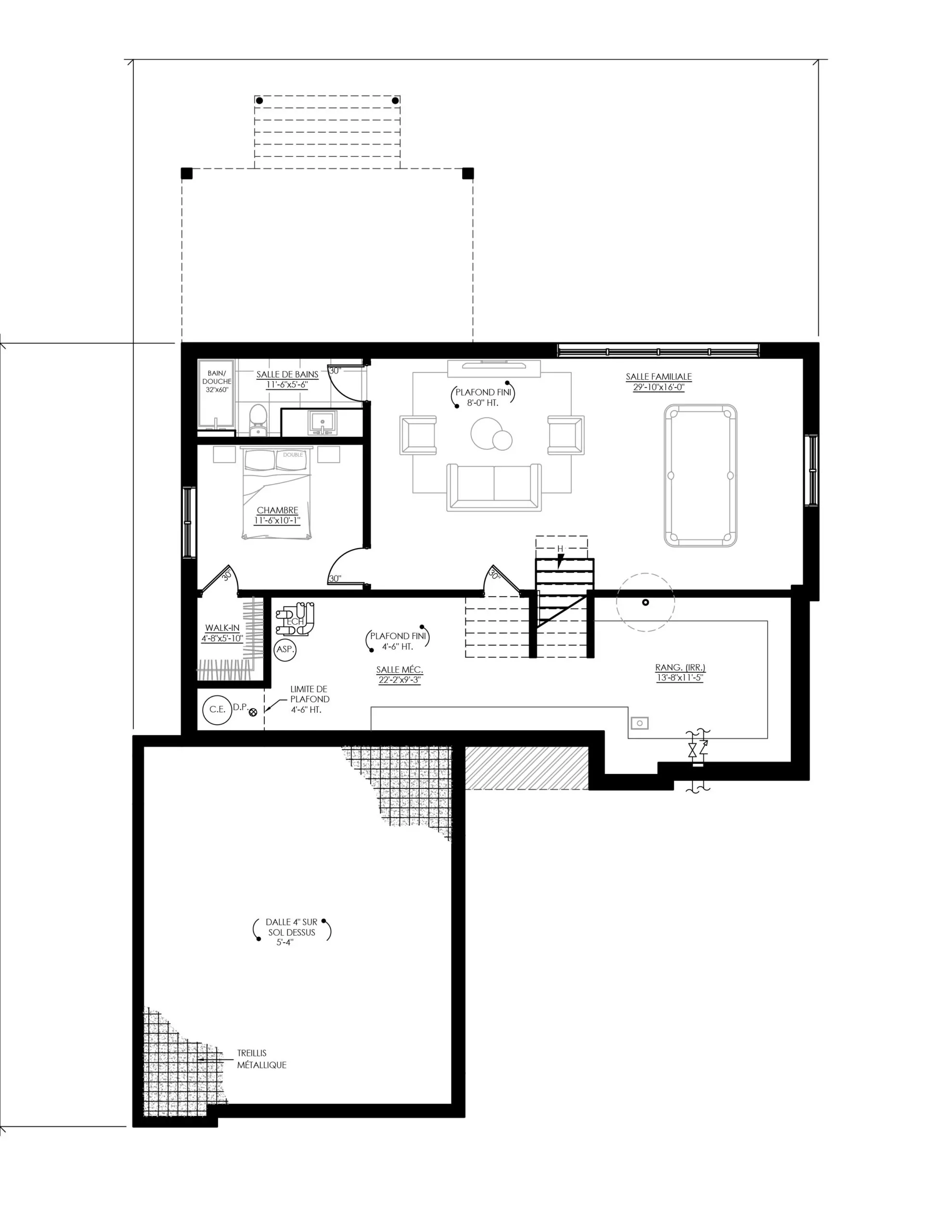
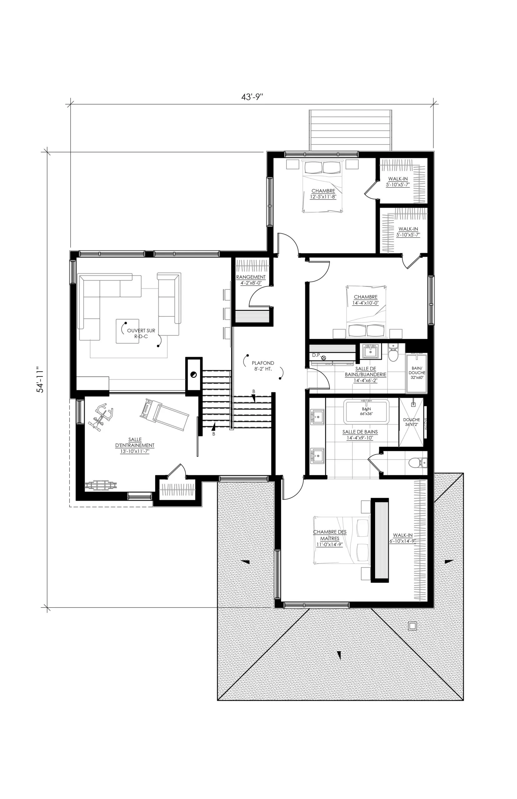
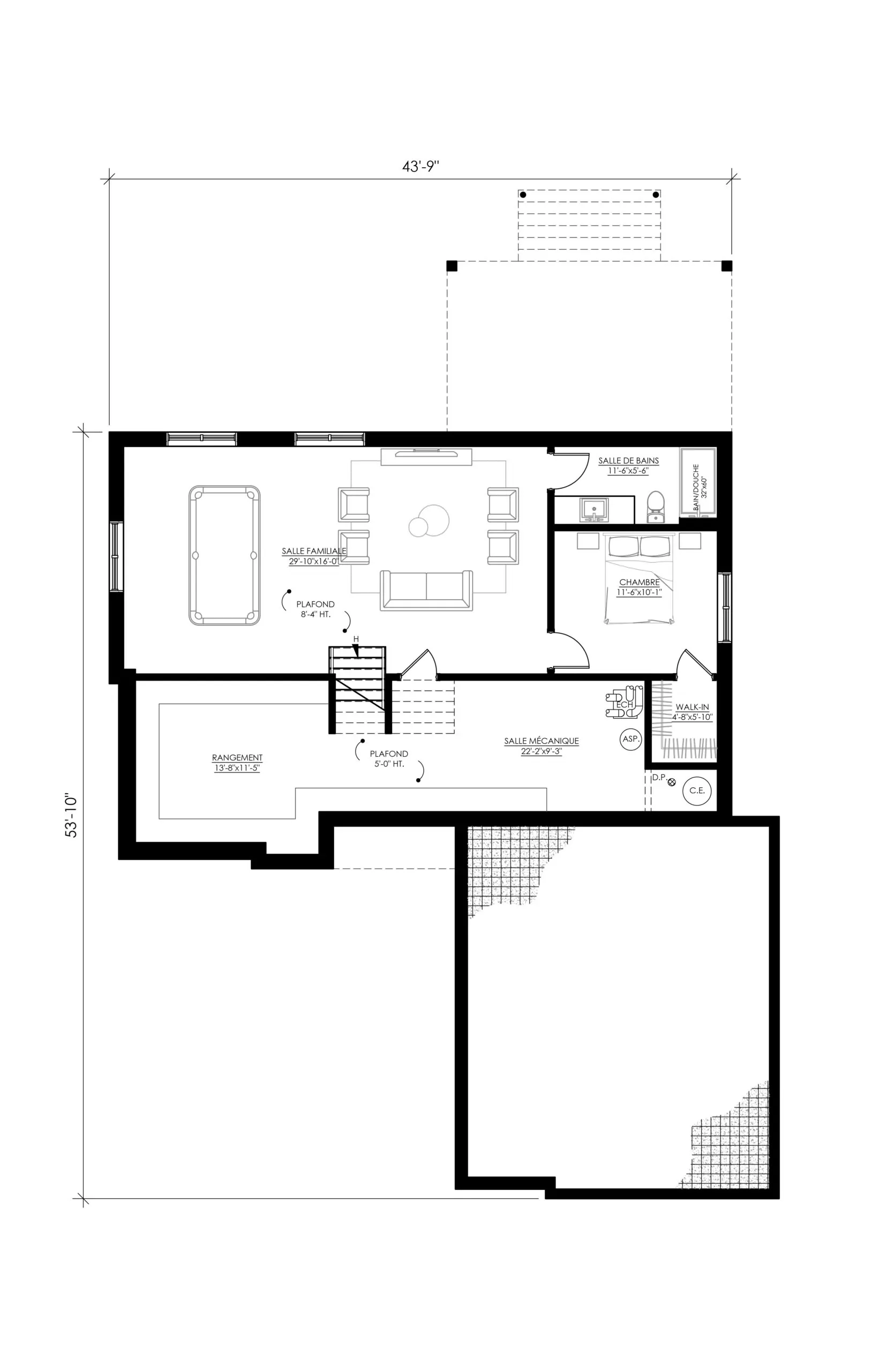
Ë_133
Avec le plan Ë_133, vous serez accueilli par un hall imposant. Celui-ci donne accès au garage ainsi qu’au vestiaire. Vous trouverez par la suite les pièces de vie à aire ouverte. Le séjour double hauteur offre espace et lumière! À l’étage, une suite des maîtres pensée à la façon d’une luxueuse chambre d’hôtel, avec salle de bain privée et walk-in. Un espace bonus, ouvert sur le séjour, sert de coin gym, de bureau, ou encore d’une quatrième chambre! En bref, le plan Ë_133 comblera tous vos besoins!
- Superficie
- 2702 pi2
- Chambre
- 3
- Garage
- Oui
- Salle de bains
- 2.5
- Étages
- 2
- Coût de const.
- 737 800 $ à 989 500 $
Comment sont estimés les coûts de construction?
Il y a toujours deux prix d’indiqués pour chacun de nos plans. Le premier montant représente un coût en autoconstruction et le second un coût clef en main. Ils sont évalués au pied carré selon une moyenne de coût de construction au Québec. Ces coûts sont approximatifs et calculés avec des matériaux de qualité standard. Ils varieront selon le type de finition que vous choisirez, les particularités de votre terrain, le coût des matériaux de votre région, etc..
Bien entendu, ceux-ci n’incluent pas les coûts d’achat de votre terrain et terrassement puisque nous n’avons aucun contrôle sur ses prix. Le coût en autoconstruction prévoit que les propriétaires gèrent eux-mêmes leur chantier et feront les travaux eux-mêmes. Alors que le coût clef en main prévoit qu’un entrepreneur général s’occupera de la construction de A à Z.
Finition intérieure prévue : Céramique aux endroits indiqués sur les plans. Bois franc au rez-de-chaussée et étage. Cabinets (cuisine et salle de bains) en mélamine. Escalier du rez-de-chaussée en bois franc et sous-sol en planches de particules de bois. Électricité, plomberie et ventilation par pièce. Les coûts ne prévoient pas la finition du sous-sol (lorsqu’il y en a un), mais prévoient tout de même son isolation et la finition de gypse au pourtour des murs extérieurs.
Finition extérieure prévue : Les finitions représentés sur les 3D ont été considérés dans les estimés. Les matériaux extérieurs couramment utilisés pour nos plans sont la maçonnerie, le déclin et l’acrylique. Fenêtres en PVC. Toiture en bardeaux d’asphalte lorsque la pente le permet, sinon en membrane d’étanchéité autocollante pour les pentes faibles. Fondation de béton coulé.
Pour un estimé précis qui tiendra compte de vos choix de finition, de la période de construction de votre projet, des matériaux locaux ainsi que des prix des sous-traitants de votre région, il faudra soumettre vos plans LEGUË architecture à un ou plusieurs entrepreneurs et discuter des finitions souhaitées. Il s’agit du processus normal et de la première étape dans votre projet de construction.
Galerie photos
- Prix
- 4980 $
Tous les plans sont modifiables.
Leguë Architecture représente, pour moi, un courant très contemporain et innovateur. L’équipe créer des projets de maison adaptés aux demandes de leurs clients.



































