Ë_262A
Le plan Ë_262A propose un concept architectural unique conçu sur trois niveaux, permettant l’intégration d’un logement bigénération au niveau du sol tout en réduisant la surface de construction et en optimisant le budget. Sa version contemporaine se distingue par une volumétrie moderne, une composition épurée et des espaces parfaitement organisés pour répondre aux besoins des familles multigénérationnelles ou des foyers recherchant une flexibilité d’aménagement.
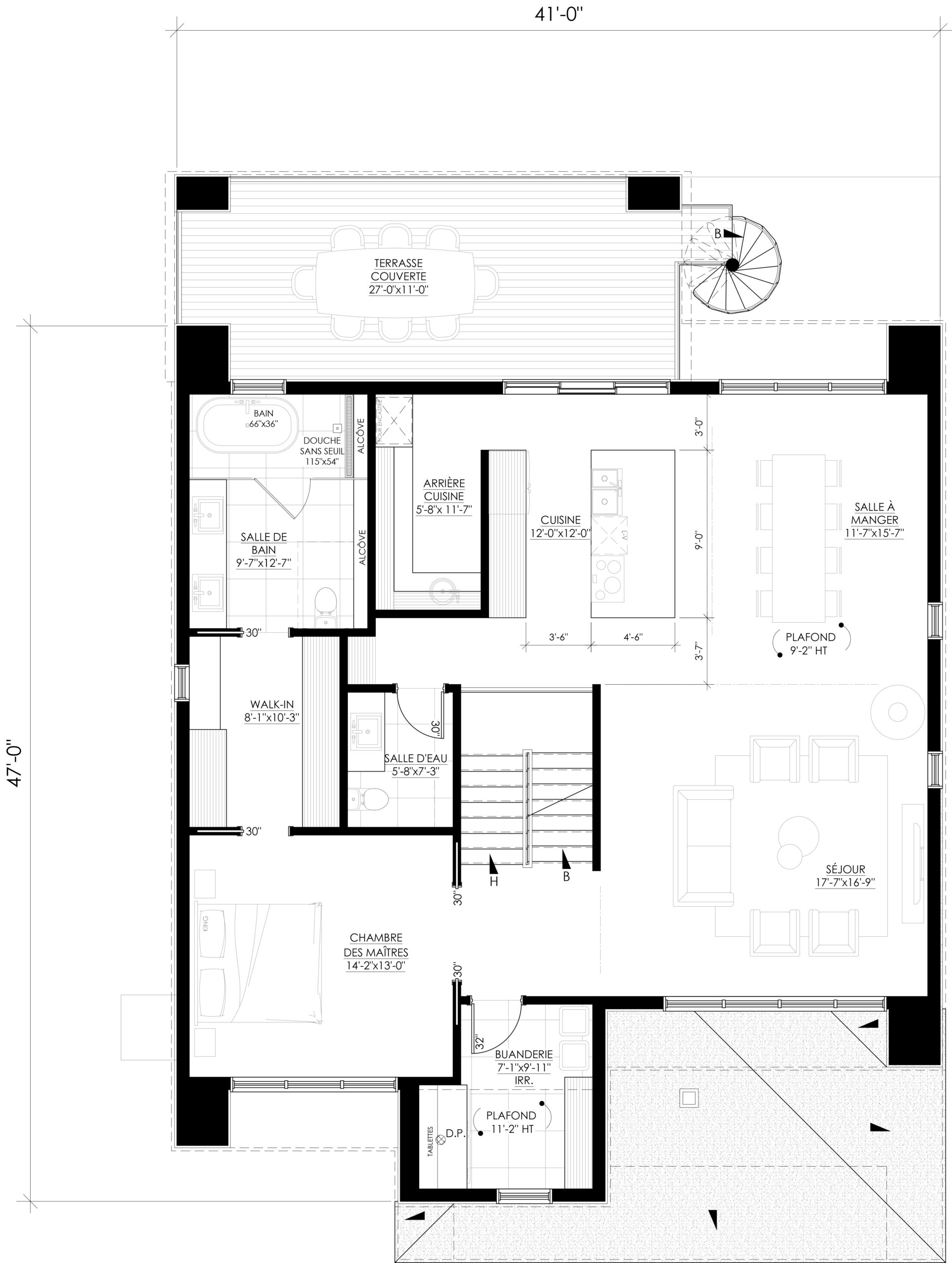
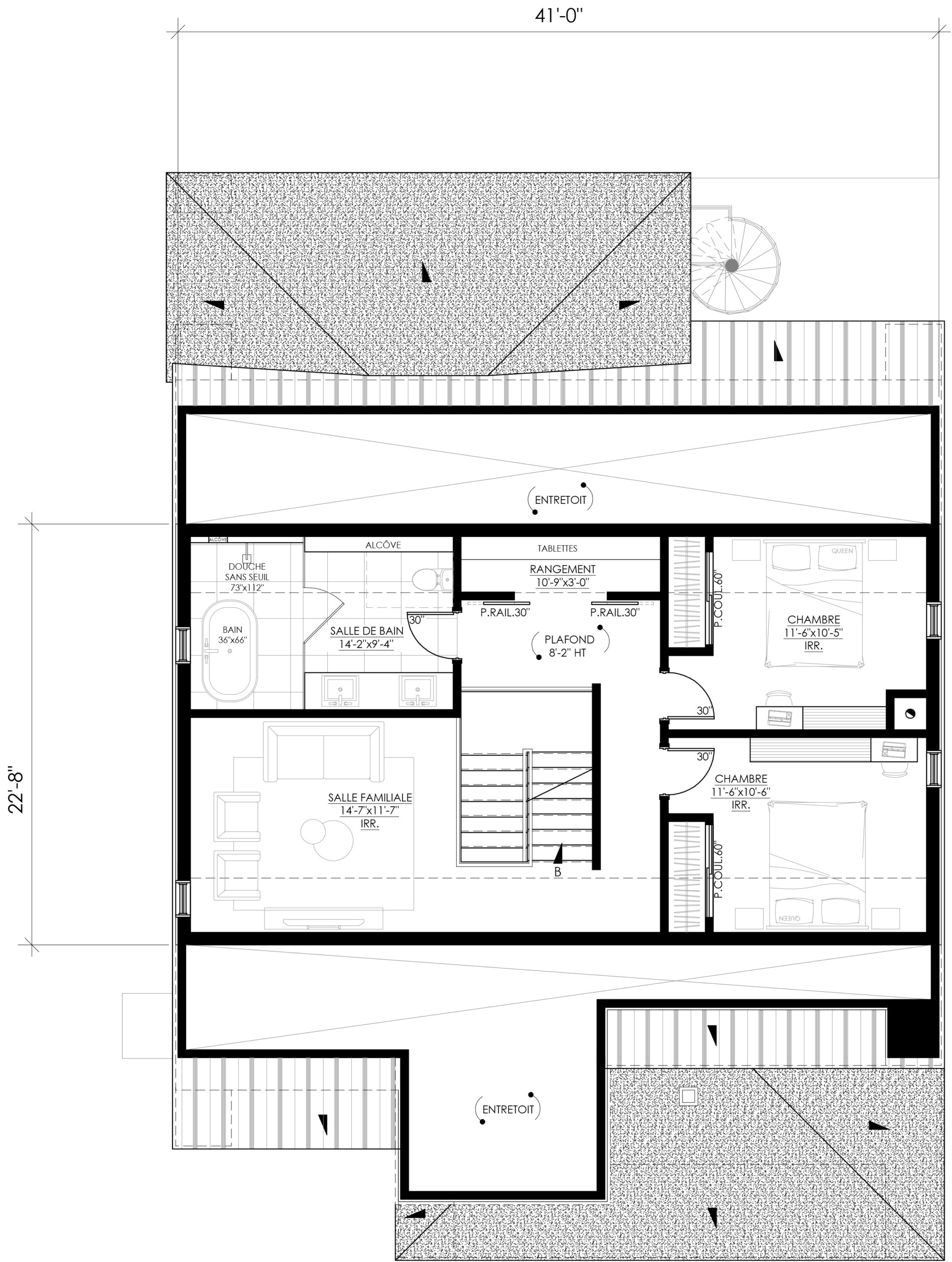
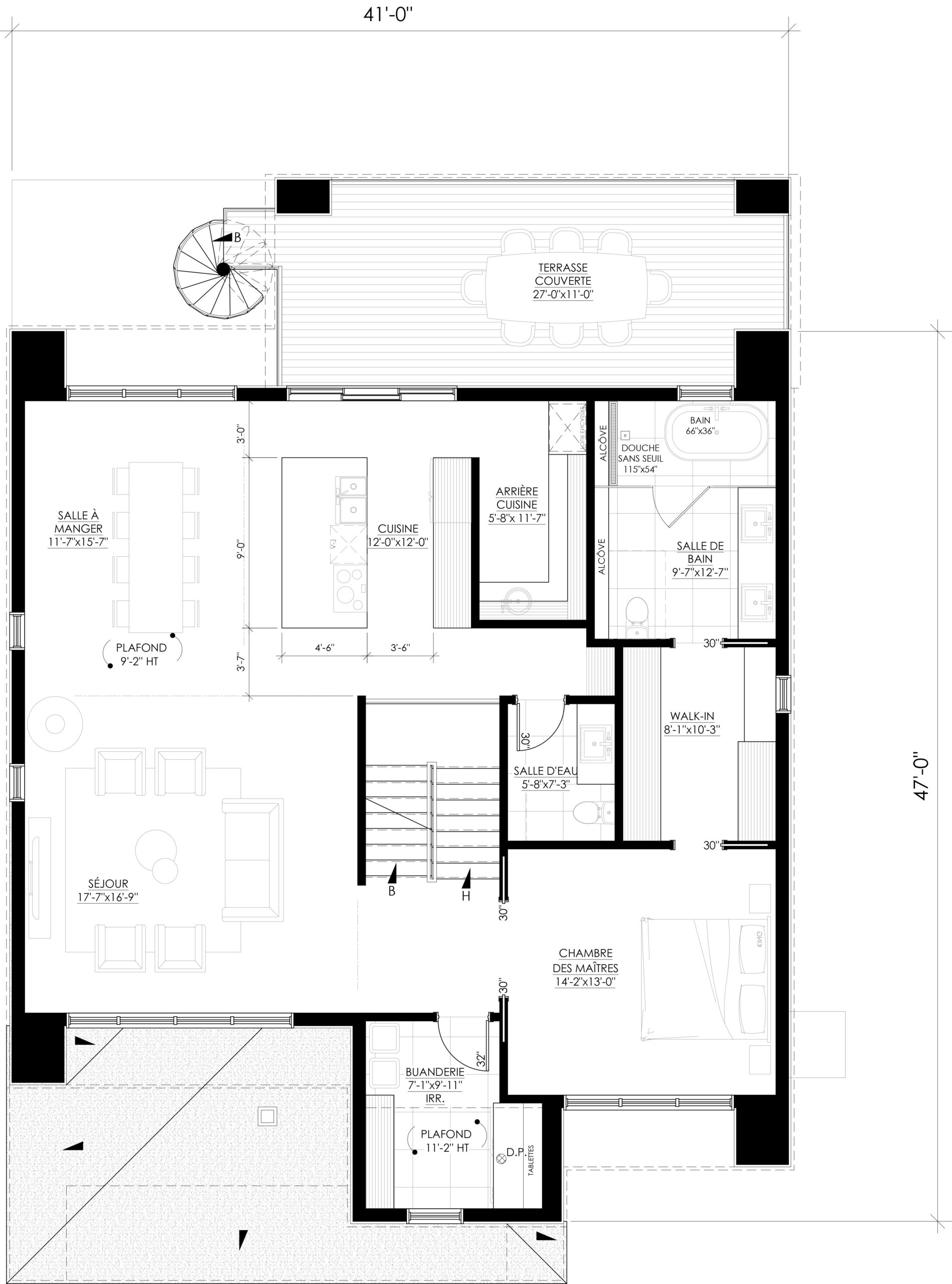
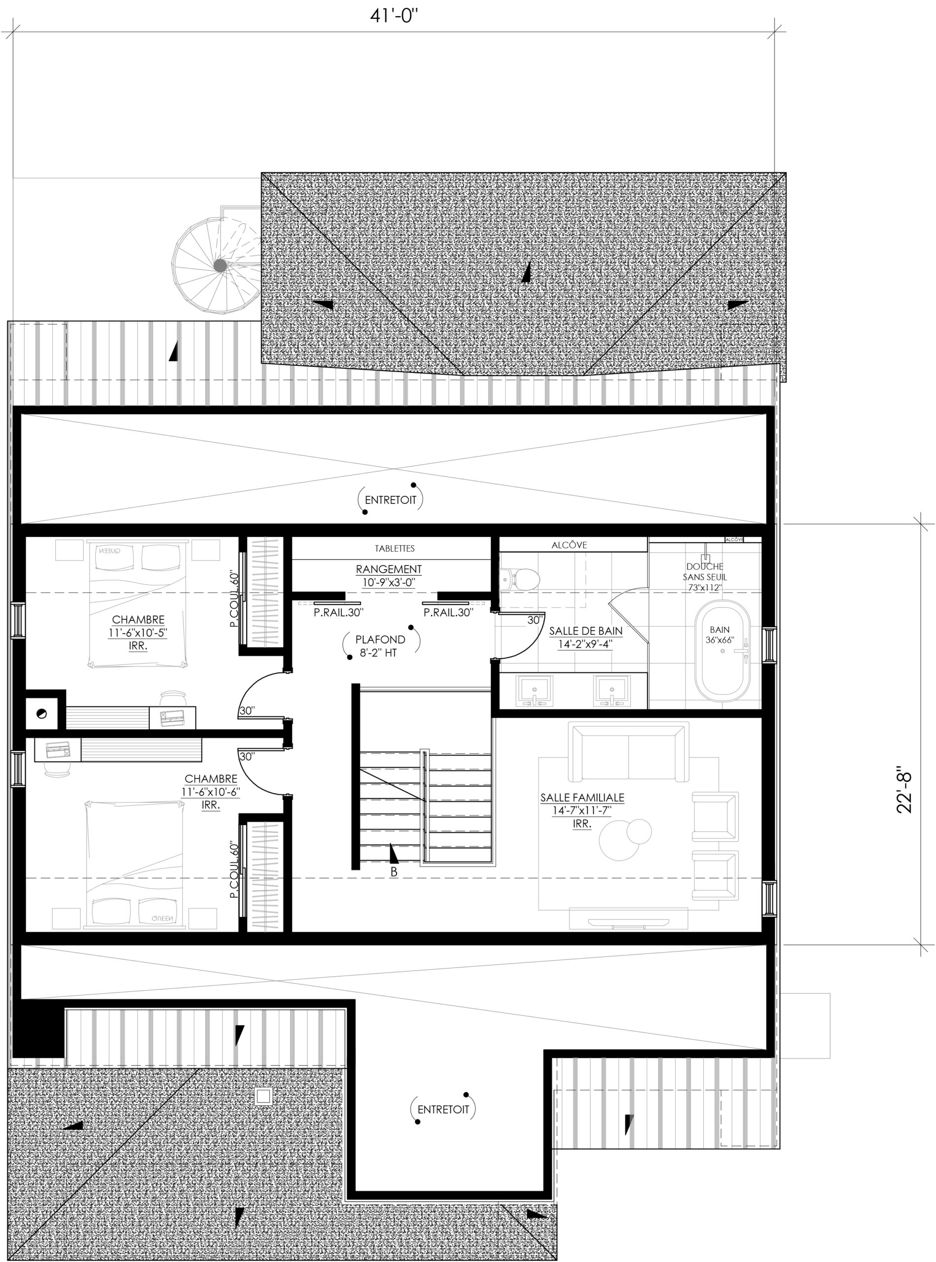
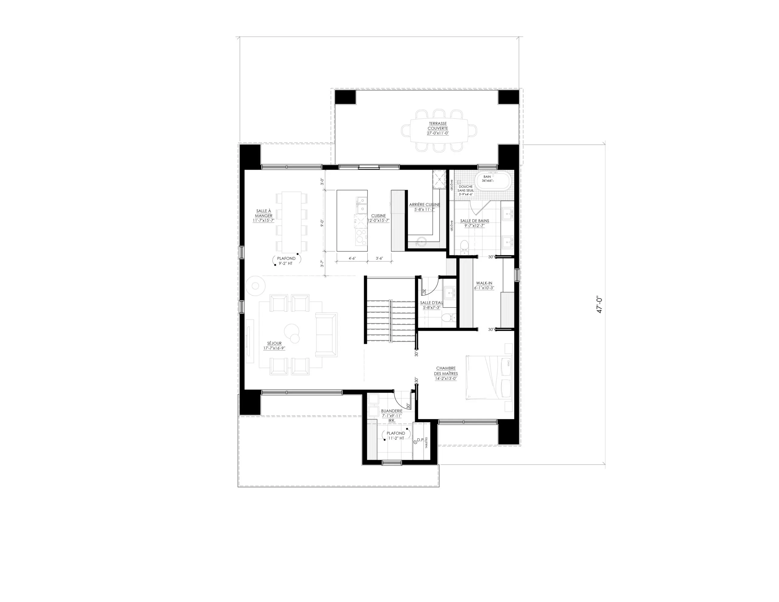
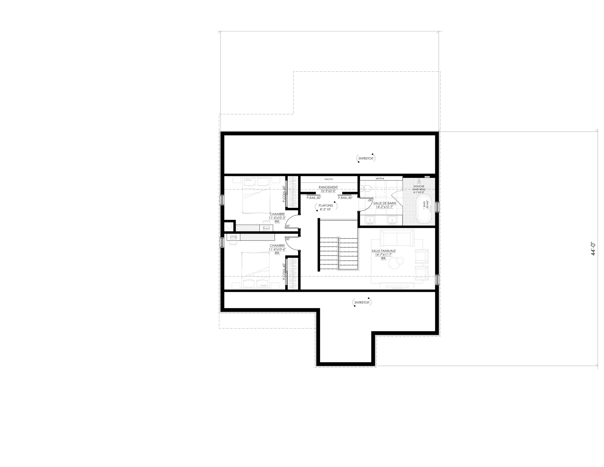
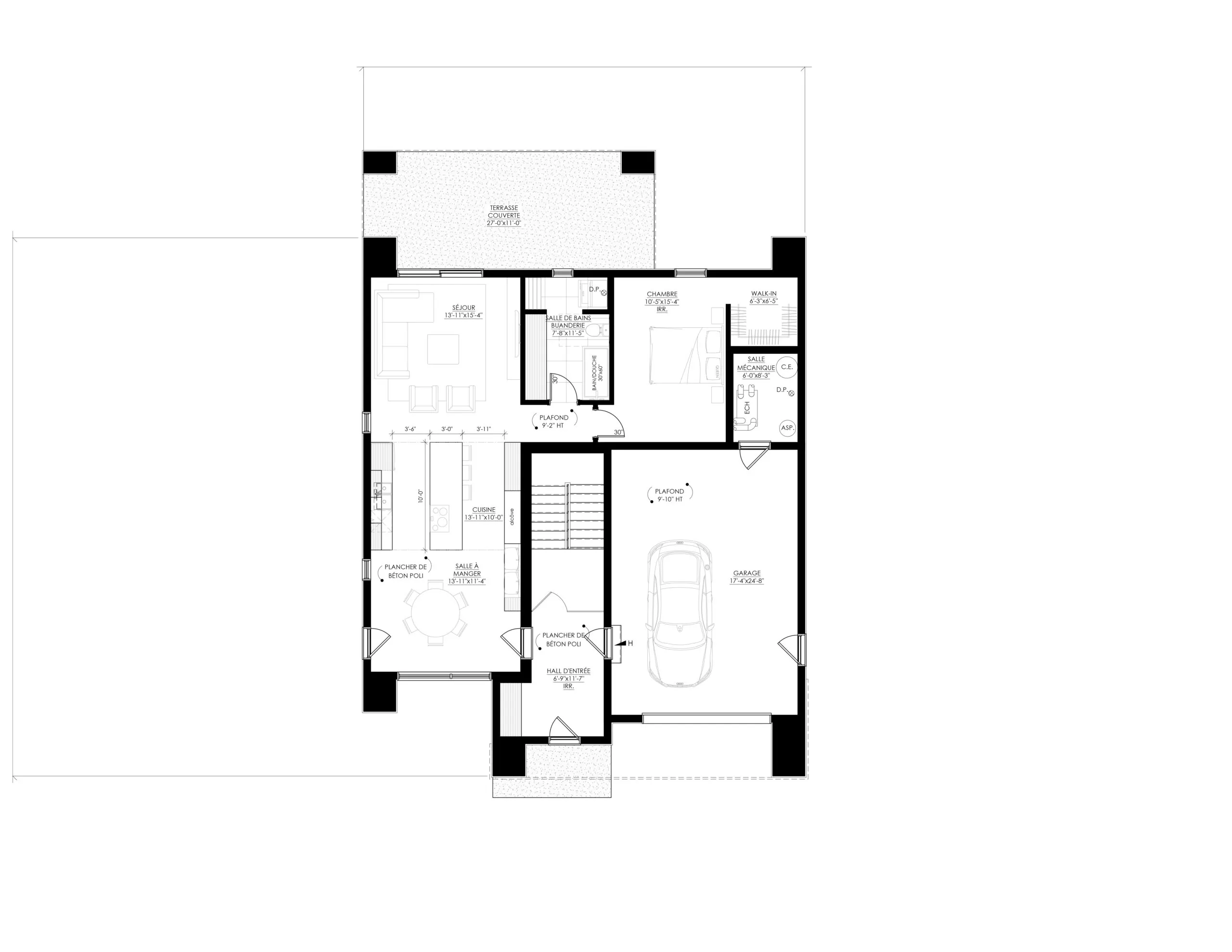
Le premier niveau comprend le logement bigénération, un espace complet et indépendant avec accès direct à l’extérieur, ainsi qu’un garage commun et le hall d’entrée principal donnant accès aux étages. Le second niveau regroupe les aires de vie principales, notamment un salon lumineux, une salle à manger conviviale, une cuisine fonctionnelle avec accès à une grande terrasse, ainsi qu’une suite des maîtres complète offrant confort et intimité. Le troisième niveau, aménagé dans les fermes de toit, est entièrement dédié aux enfants. Il comprend deux chambres, une salle de bain et un séjour additionnel, créant un environnement autonome et intime.
Ce plan se distingue par sa flexibilité. Pour les familles n’ayant pas besoin d’un logement d’appoint, le rez-de-chaussée peut être reconfiguré en chambre supplémentaire, en garage élargi, en bureau à domicile ou en atelier. Comme tous les plans signés Leguë Architecture, le Ë_262A peut être adapté afin de répondre précisément aux besoins du client, tant sur le plan fonctionnel qu’esthétique.
- Superficie
- 3 666 pi2
- Chambre
- 4
- Garage
- Oui
- Salle de bains
- 3.5
- Étages
- 3
- Coût de const.
- 875 000 $ à 1 290 000 $
Comment sont estimés les coûts de construction?
Il y a toujours deux prix d’indiqués pour chacun de nos plans. Le premier montant représente un coût en autoconstruction et le second un coût clef en main. Ils sont évalués au pied carré selon une moyenne de coût de construction au Québec. Ces coûts sont approximatifs et calculés avec des matériaux de qualité standard. Ils varieront selon le type de finition que vous choisirez, les particularités de votre terrain, le coût des matériaux de votre région, etc..
Bien entendu, ceux-ci n’incluent pas les coûts d’achat de votre terrain et terrassement puisque nous n’avons aucun contrôle sur ses prix. Le coût en autoconstruction prévoit que les propriétaires gèrent eux-mêmes leur chantier et feront les travaux eux-mêmes. Alors que le coût clef en main prévoit qu’un entrepreneur général s’occupera de la construction de A à Z.
Finition intérieure prévue : Céramique aux endroits indiqués sur les plans. Bois franc au rez-de-chaussée et étage. Cabinets (cuisine et salle de bains) en mélamine. Escalier du rez-de-chaussée en bois franc et sous-sol en planches de particules de bois. Électricité, plomberie et ventilation par pièce. Les coûts ne prévoient pas la finition du sous-sol (lorsqu’il y en a un), mais prévoient tout de même son isolation et la finition de gypse au pourtour des murs extérieurs.
Finition extérieure prévue : Les finitions représentés sur les 3D ont été considérés dans les estimés. Les matériaux extérieurs couramment utilisés pour nos plans sont la maçonnerie, le déclin et l’acrylique. Fenêtres en PVC. Toiture en bardeaux d’asphalte lorsque la pente le permet, sinon en membrane d’étanchéité autocollante pour les pentes faibles. Fondation de béton coulé.
Pour un estimé précis qui tiendra compte de vos choix de finition, de la période de construction de votre projet, des matériaux locaux ainsi que des prix des sous-traitants de votre région, il faudra soumettre vos plans LEGUË architecture à un ou plusieurs entrepreneurs et discuter des finitions souhaitées. Il s’agit du processus normal et de la première étape dans votre projet de construction.



































