Ë_262B
Le plan Ë_262B est un concept bi-génération ingénieusement conçu pour offrir un maximum d’efficacité tout en minimisant la surface au sol, et donc les coûts de construction. Inspiré du style Cape Cod traditionnel, ce modèle propose une architecture verticale unique répartie sur trois niveaux, permettant d’intégrer un logement bigénération complet sans étendre l’empreinte au sol.
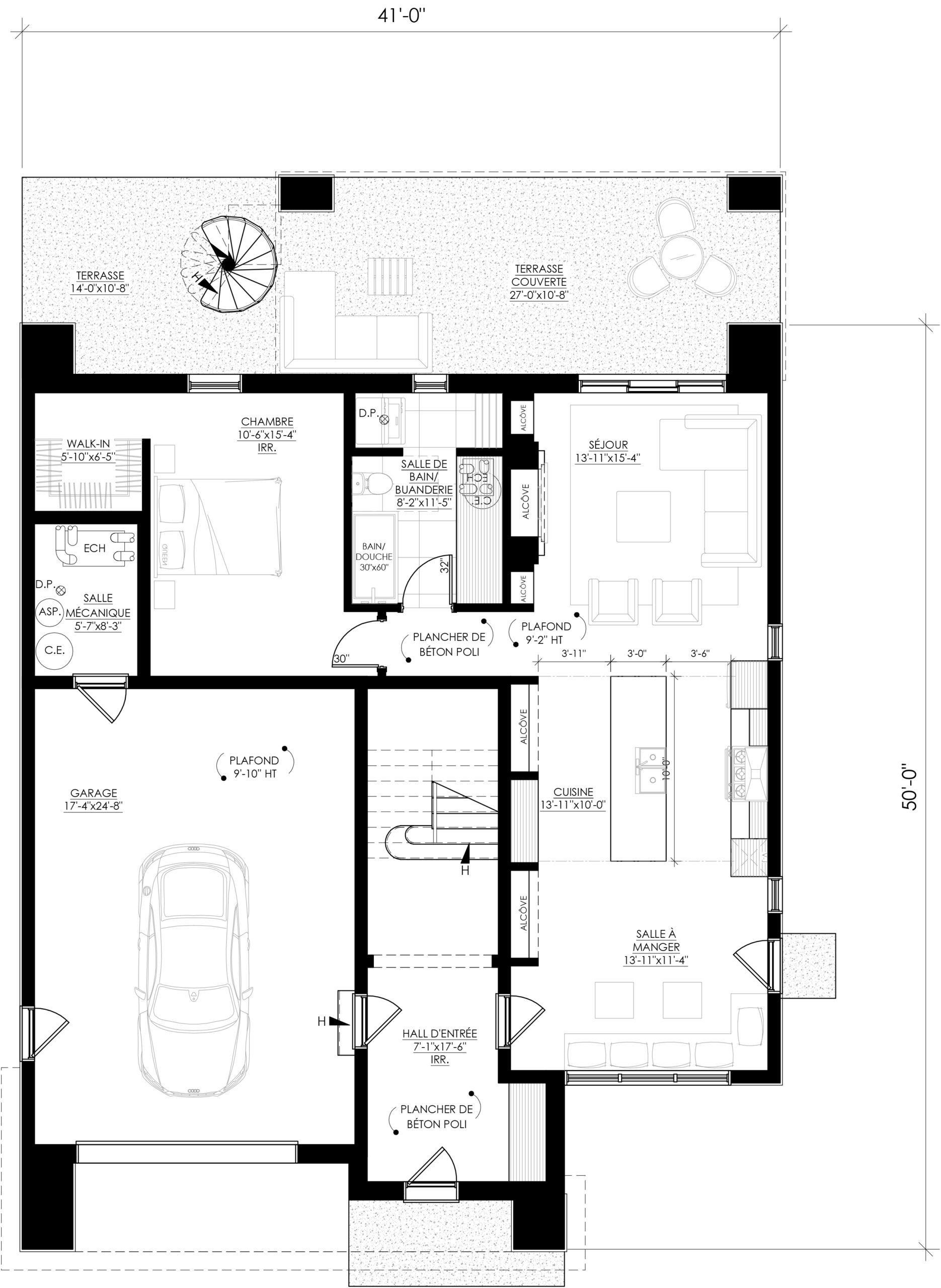
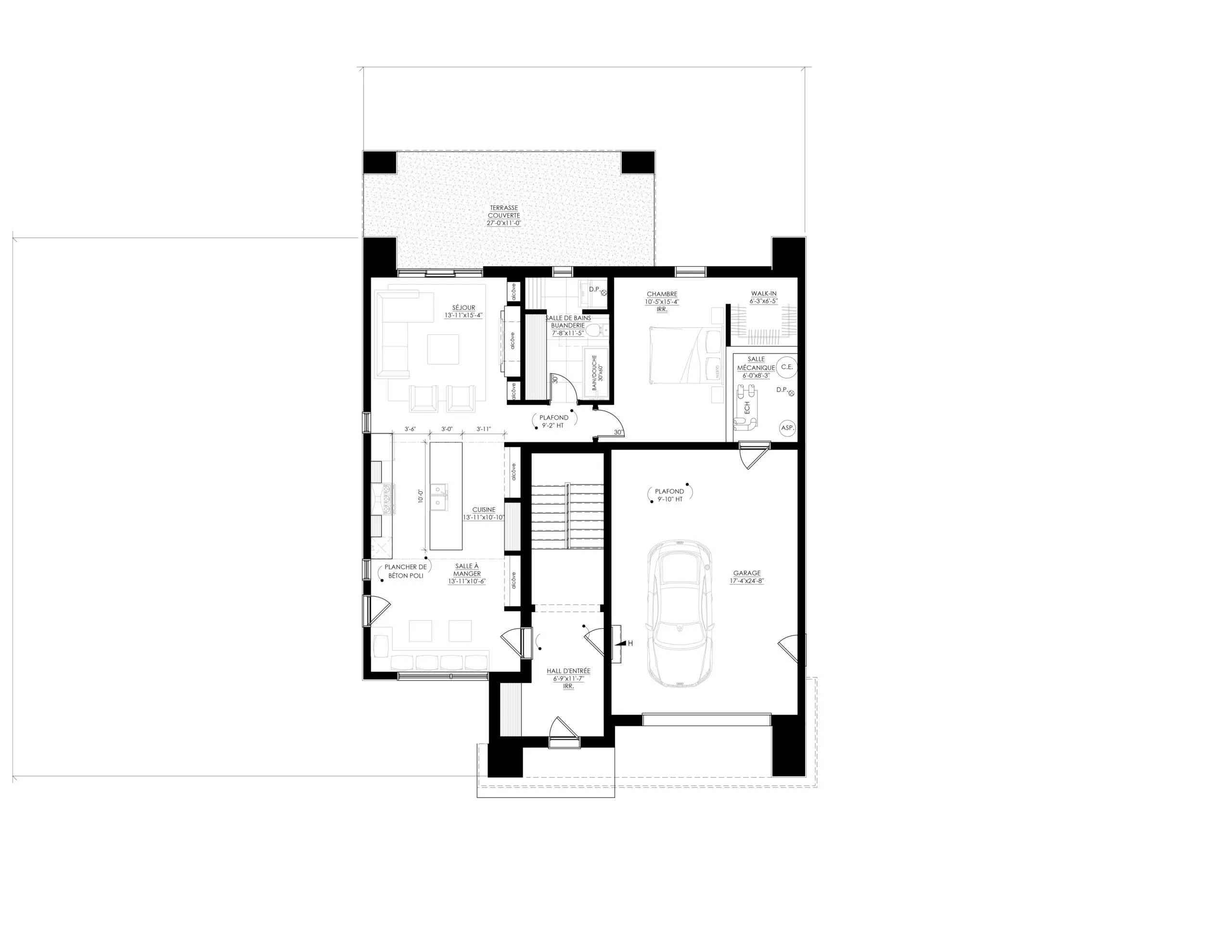
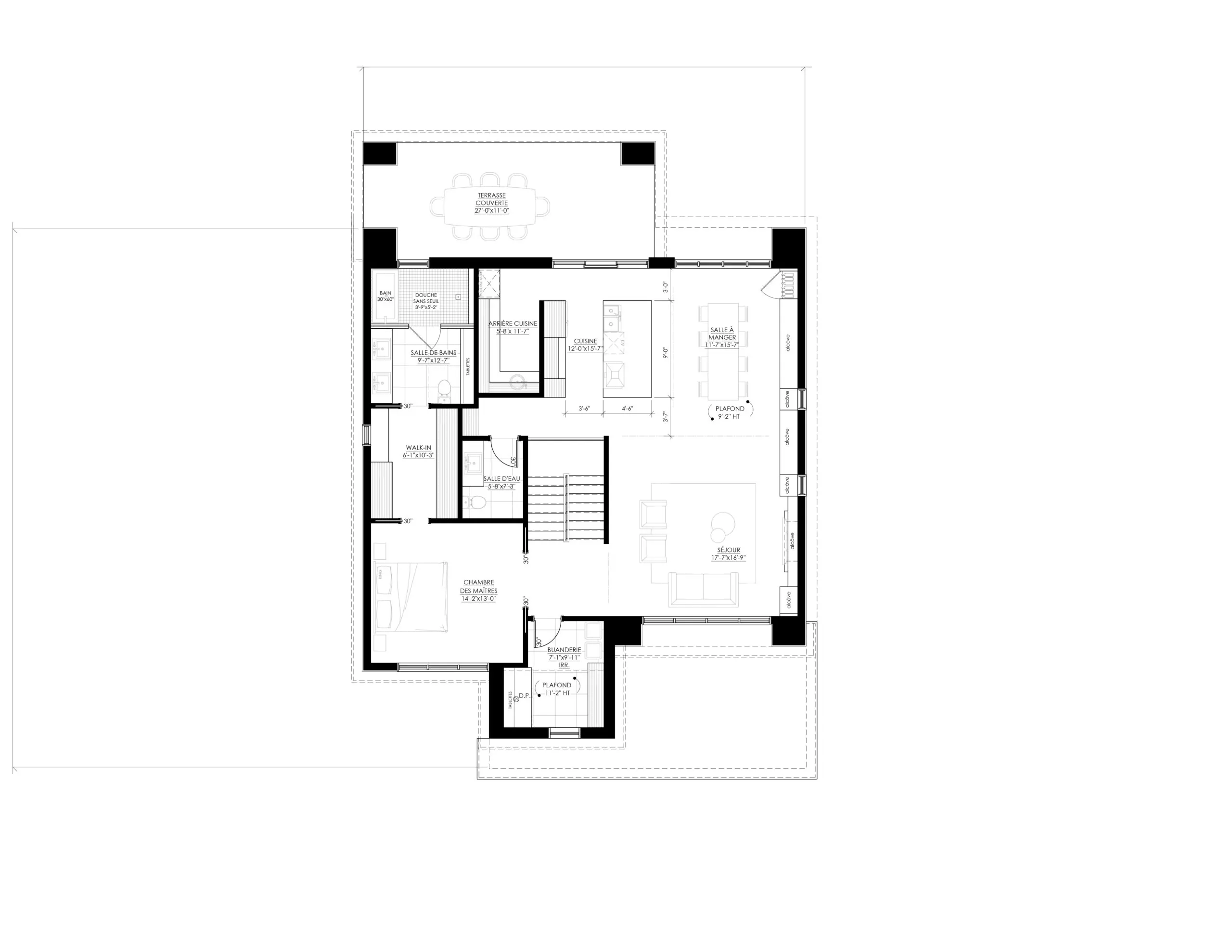
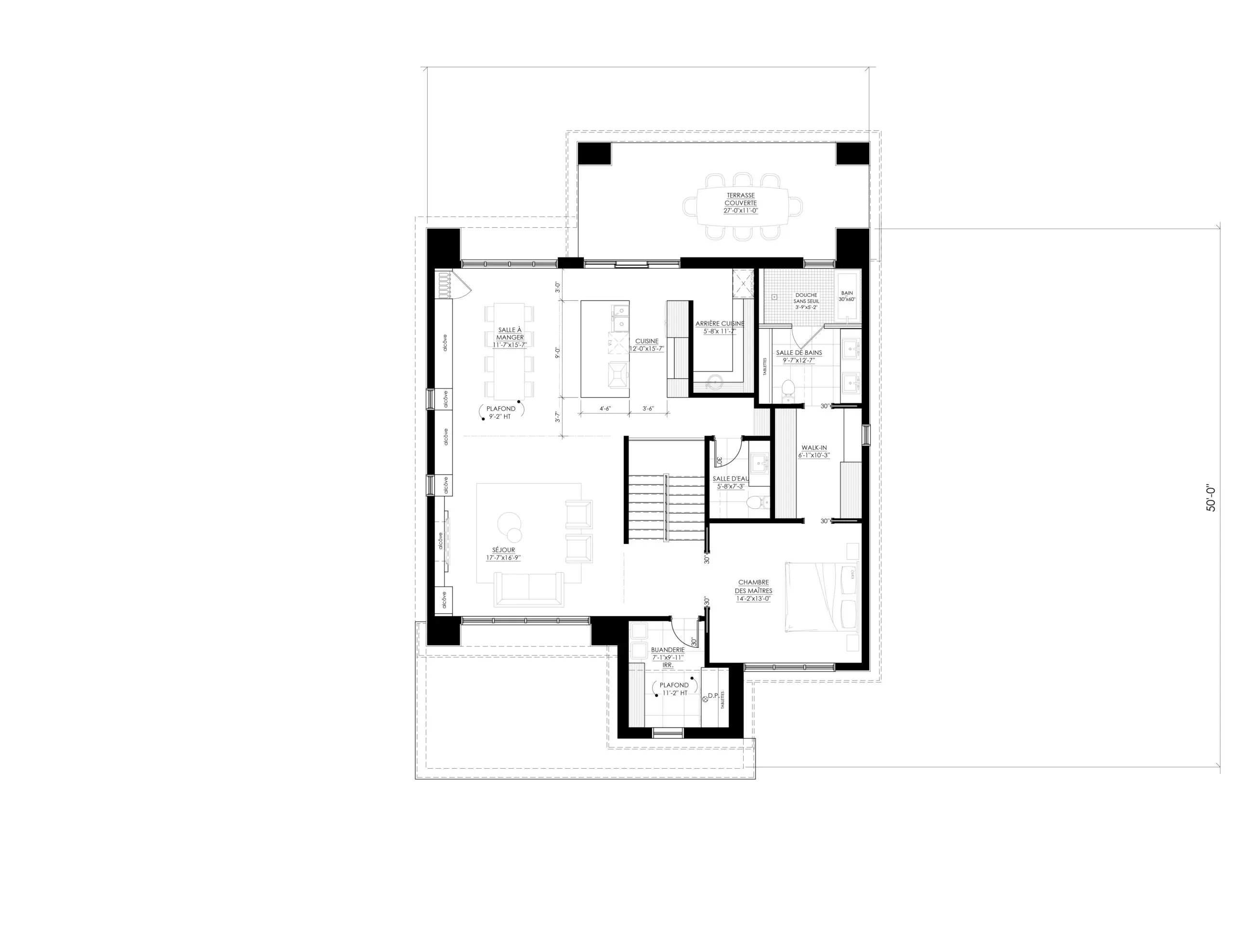
Au rez-de-chaussée, un hall central donne accès au logement bigénération, au garage ainsi qu’à l’escalier menant à l’habitation principale. Le logement offre une aire de vie confortable, une chambre ainsi qu’un accès direct à la terrasse extérieure. Le plan a été pensé sans sous-sol afin d’optimiser l’efficacité du projet et d’éliminer les contraintes liées aux fondations traditionnelles.
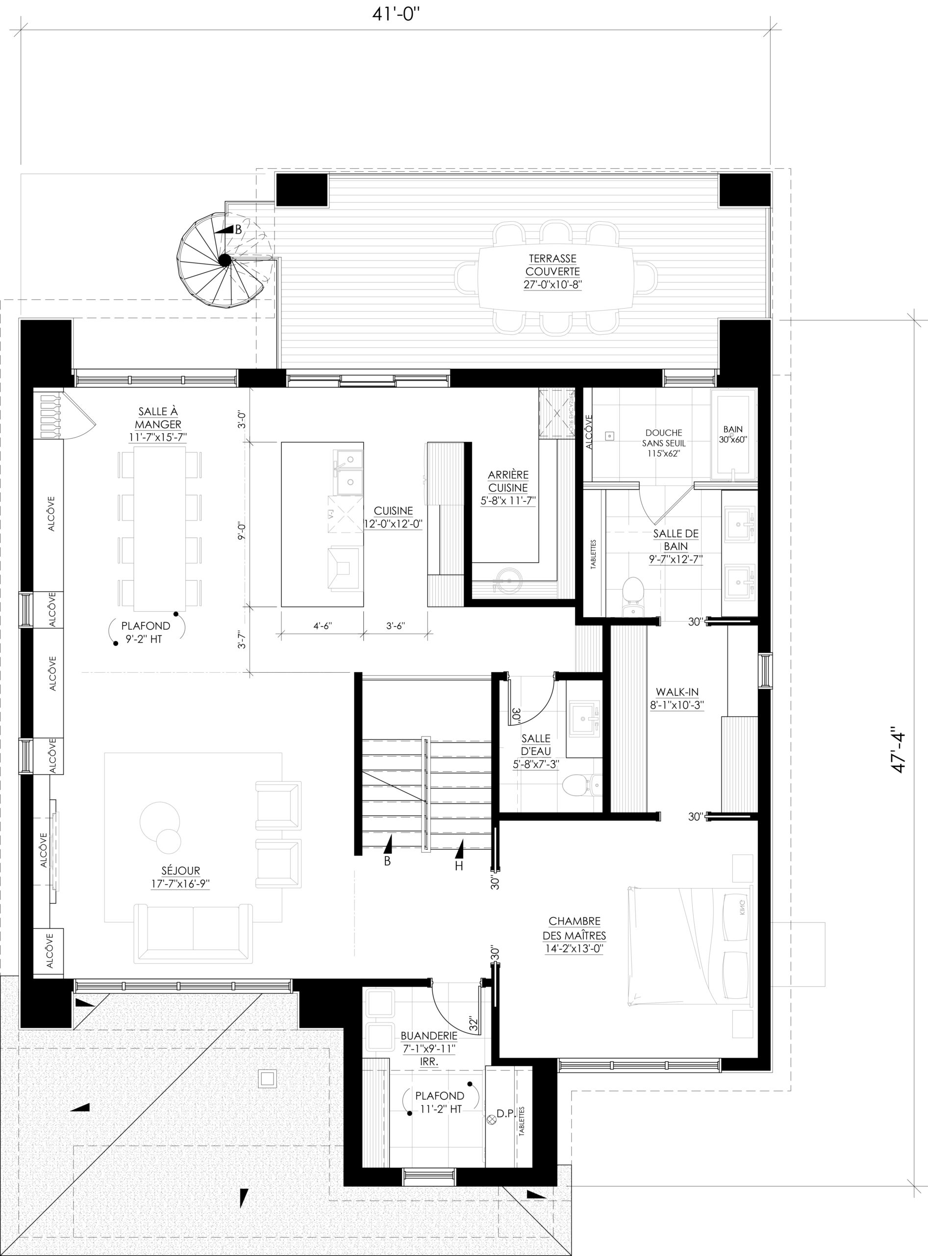
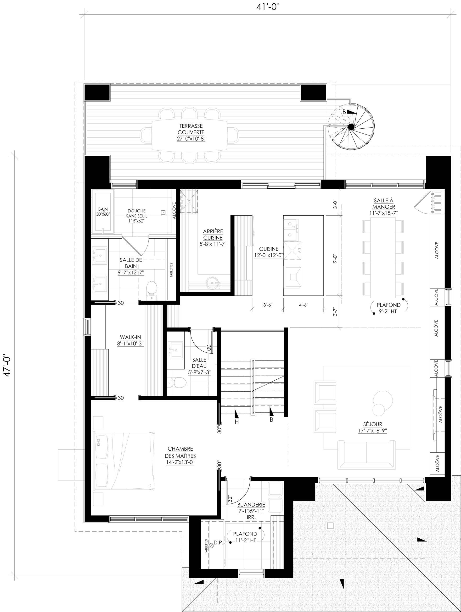
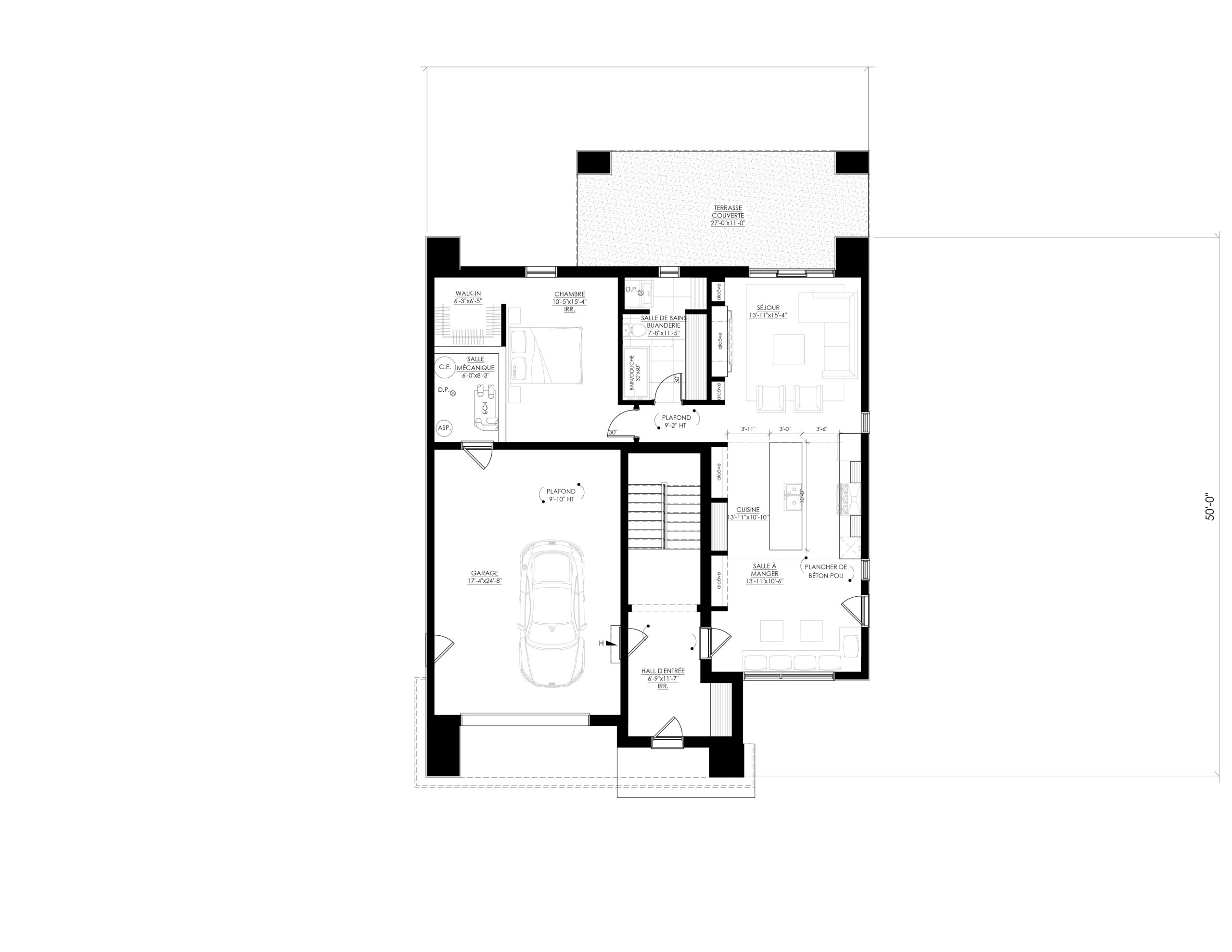
Le deuxième niveau regroupe les aires de vie principales : une cuisine fonctionnelle avec salle à manger et séjour en aire ouverte, offrant luminosité et intimité grâce à leur positionnement en hauteur. Ce même étage propose une suite des maîtres complète comprenant un walk-in et une salle de bain.
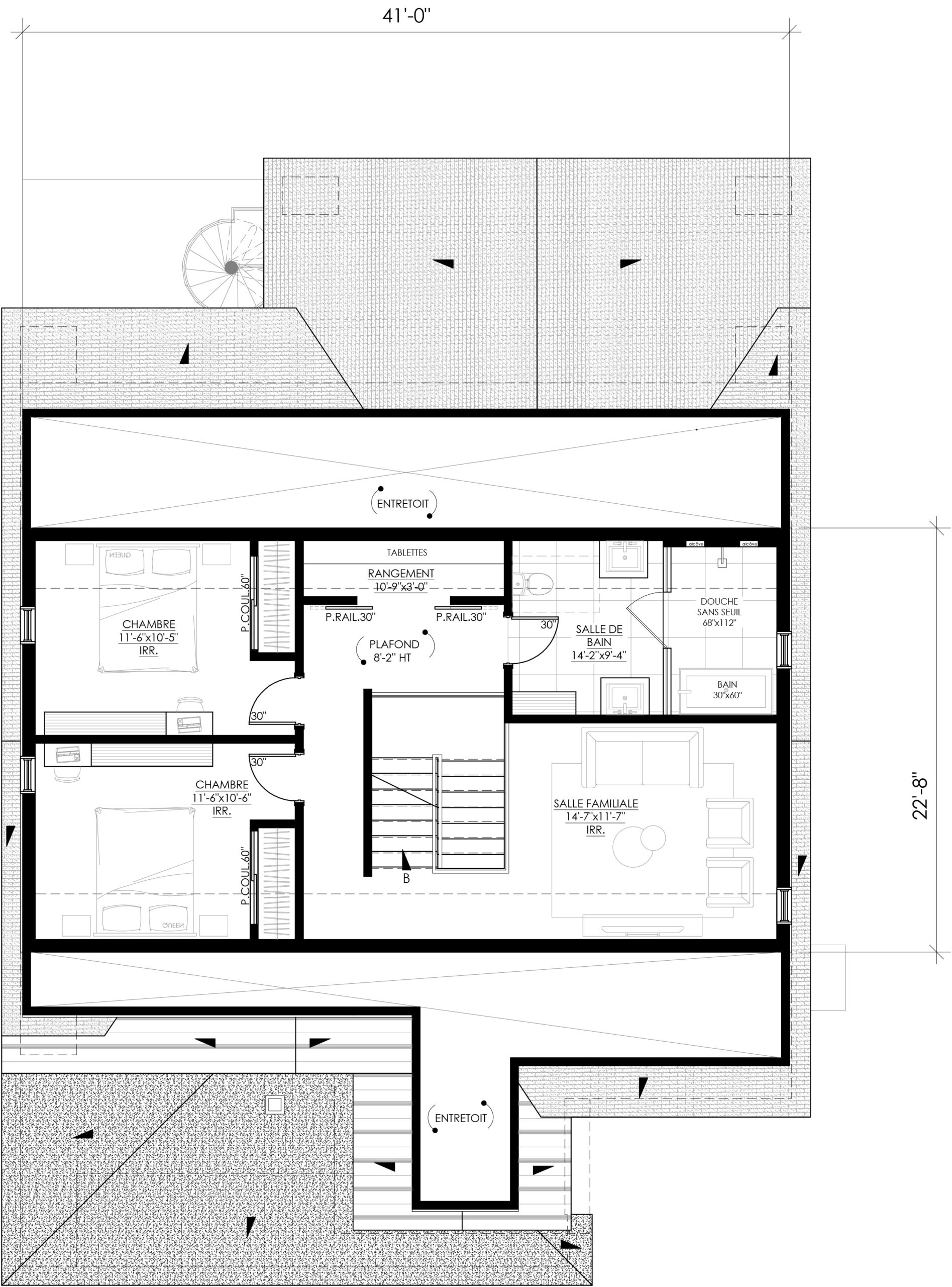
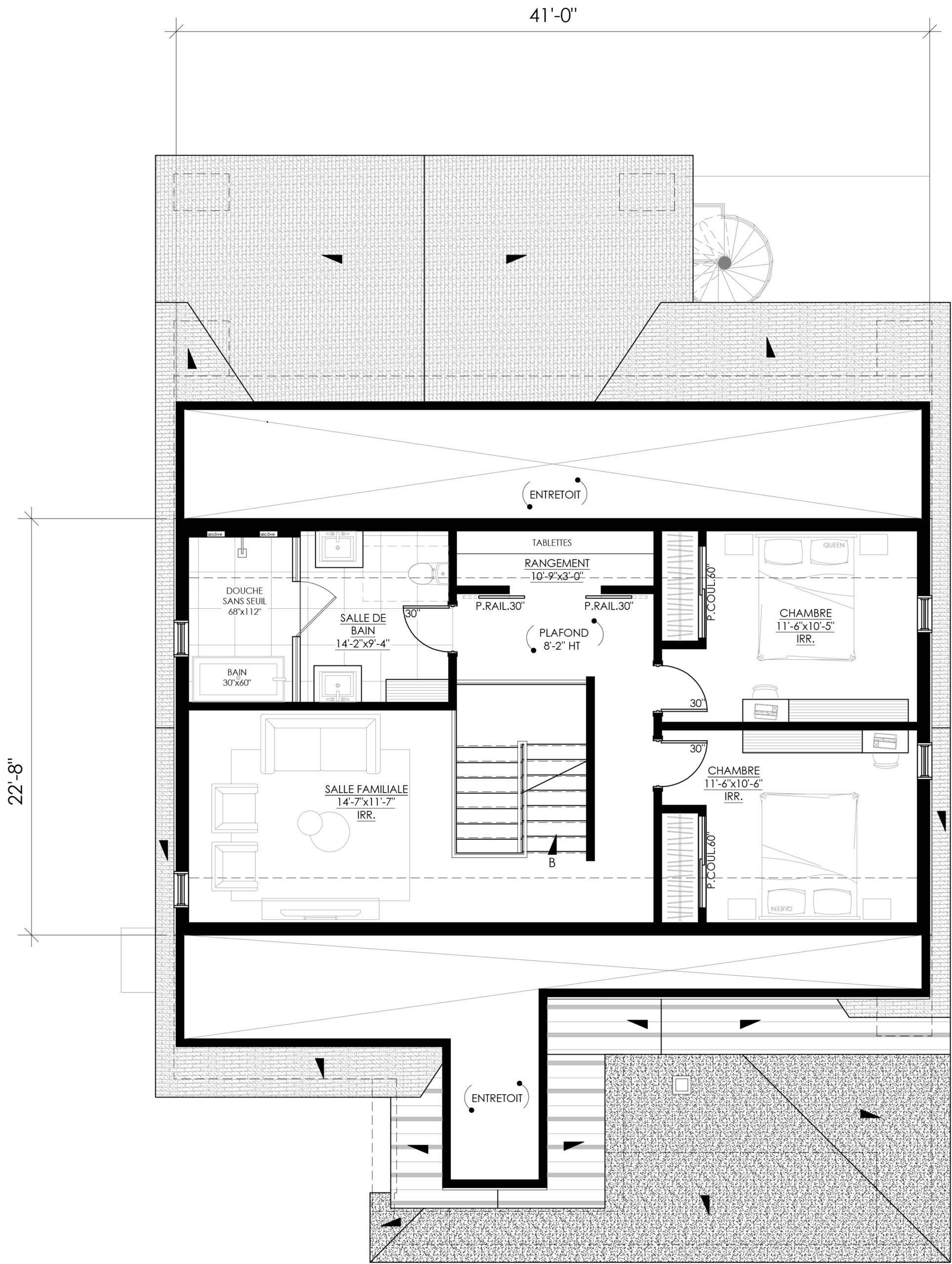
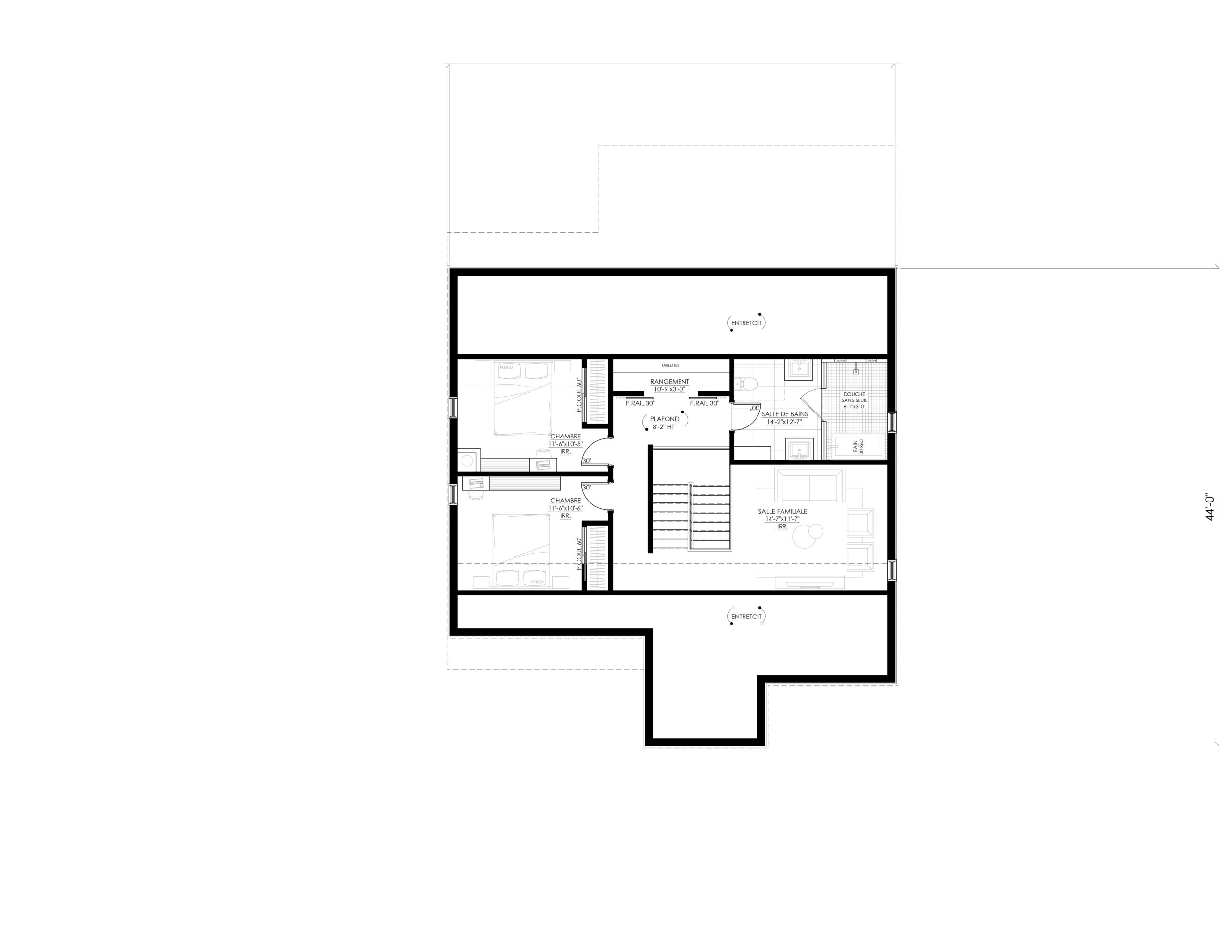
Le troisième niveau, aménagé dans les fermes de toit, est entièrement dédié aux enfants. Il comprend deux chambres supplémentaires, une salle de bain ainsi qu’un séjour familial, créant un espace distinct et évolutif.
Le plan Ë_262B se distingue par son utilisation optimale de la verticalité, sa capacité à intégrer harmonieusement un espace bi-génération et son architecture raffinée, parfaitement adaptée aux besoins modernes des familles.
- Superficie
- 3 666 pi2
- Chambre
- 4
- Garage
- Oui
- Salle de bains
- 3.5
- Étages
- 3
- Coût de const.
- 829 000 à 1 165 000 $
Comment sont estimés les coûts de construction?
Il y a toujours deux prix d’indiqués pour chacun de nos plans. Le premier montant représente un coût en autoconstruction et le second un coût clef en main. Ils sont évalués au pied carré selon une moyenne de coût de construction au Québec. Ces coûts sont approximatifs et calculés avec des matériaux de qualité standard. Ils varieront selon le type de finition que vous choisirez, les particularités de votre terrain, le coût des matériaux de votre région, etc..
Bien entendu, ceux-ci n’incluent pas les coûts d’achat de votre terrain et terrassement puisque nous n’avons aucun contrôle sur ses prix. Le coût en autoconstruction prévoit que les propriétaires gèrent eux-mêmes leur chantier et feront les travaux eux-mêmes. Alors que le coût clef en main prévoit qu’un entrepreneur général s’occupera de la construction de A à Z.
Finition intérieure prévue : Céramique aux endroits indiqués sur les plans. Bois franc au rez-de-chaussée et étage. Cabinets (cuisine et salle de bains) en mélamine. Escalier du rez-de-chaussée en bois franc et sous-sol en planches de particules de bois. Électricité, plomberie et ventilation par pièce. Les coûts ne prévoient pas la finition du sous-sol (lorsqu’il y en a un), mais prévoient tout de même son isolation et la finition de gypse au pourtour des murs extérieurs.
Finition extérieure prévue : Les finitions représentés sur les 3D ont été considérés dans les estimés. Les matériaux extérieurs couramment utilisés pour nos plans sont la maçonnerie, le déclin et l’acrylique. Fenêtres en PVC. Toiture en bardeaux d’asphalte lorsque la pente le permet, sinon en membrane d’étanchéité autocollante pour les pentes faibles. Fondation de béton coulé.
Pour un estimé précis qui tiendra compte de vos choix de finition, de la période de construction de votre projet, des matériaux locaux ainsi que des prix des sous-traitants de votre région, il faudra soumettre vos plans LEGUË architecture à un ou plusieurs entrepreneurs et discuter des finitions souhaitées. Il s’agit du processus normal et de la première étape dans votre projet de construction.
Galerie photos
Présentation Ë_262B









































